top of page
Rowing Club and Educational Center

Year: 2024
Location: Kishon River, Haifa, Israel.
Course: Architecture studio, Technion Institute of Technology, Israel.
Instructors: Architect Eyal Weizman, Architect Oren Ben-Ari
On the banks of the Kishon River in Israel, this project presents the planning of a new rowing club and ecological education center. Its unique design allows the interaction between the two different uses, while keeping them mostly separate and allowing the club activities to enjoy the privacy they require.
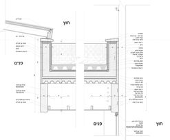
In order to introduce a more sostainable design, the project uses a wood and concrete compsite structure. Thus, it ensures a lighter structure with better end-of-life uses, faster building times and beautiful natural design.

The Area
The Proposed Building

The Existing Site

Development of the Form


The Proposed Form
Climate Analysis

Summer

Winter
The Proposal

First Floor Plan | 1-50


Roof Plan | 1-50

Plans
Sections and Details
Models and Renders
bottom of page



















